乌门楼许:书写于时光深处的那份孝心


...................................................................................
乌门楼许:书写于时光深处的那份孝心
乌门楼许位于中山西路118号(古永清街),始建于南宋嘉定年间(1217年),为天台许氏世代聚居之处。

1214年,许容出于孝心,为其父建造坟,因功绩卓越,皇帝将他相同的官职赠于他父亲,寿坟前建造牌坊,这是一件父因子荣的事。 《天台坡街许氏志》中,民间有乌鸦反哺,传统观念中,乌鸦是孝顺的化身。人们惊诧于千余只孝鸟聚集于坊前,便认为是许容的孝心所致。将许氏宅院,称为“乌门楼”,加上了“许”姓,“乌门楼许”就这样叫开了。

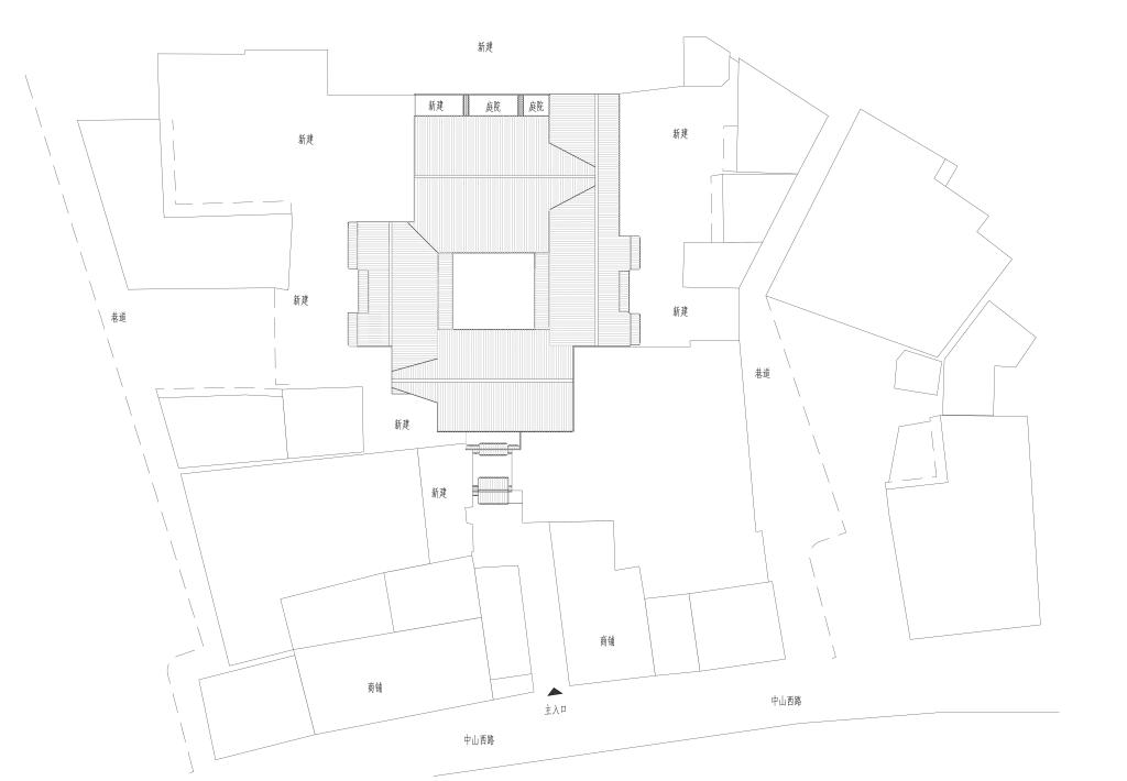
主体为两进四合院,坐北朝南,大门之后为轿厅所在的小院,穿过二门和过厅为主题院子。主体院子呈现明显的围合性,四四方方,左右对称。


正对入口小巷的是一个古色古香的照壁,照壁上有“福”字及建楼年份,四角饰蝙蝠花纹。基部石刻浮雕三幅,为飞鹤及鲤鱼跃波图。


主体建筑是一个木结构的抬梁穿斗混合式结构,在江南非常典型。

主体建筑有很多细部,门窗、梁柱和斗拱都非常有特点,如下图。

测绘花絮--团队成员:
